Beneath the Iceberg
Ankorau LABO Center
in Shanghai
Once again, we collaborated with Roarc Renew for a project with a cool brand: Ankorau. This project, located in Columbia Circle in Shanghai is serving as the new Ankorau Design Team office and “LABO Center”. As all our collab with Roarc Renew, we did not hide structural details, instead, we exposed them to show the beauty of the structure. We refined all the details to match structure needs, design aesthetic and brand vision as a holistic design approach.
Besides the structure design aspect and achievements of this project, this has been a pioneer project for bespoke. as it was the first time we implemented our package documentation workflow as a process we are developing in the background of our daily work.
1 ⁄ 项目背景&特色
Background & Features
We are showing you the invisible, what is behind the final deliverables, explaining our logic and thinking, which makes it possible to achieve our ideas.
A New Mezzanine Structure
Within an existing space located on 3rd and 4th floor of Columbia Circle, building 10#, we added a new mezzanine structure which transformed the space into a creative environment. A new featured staircase has been designed as the central piece of the project, it connects the 3rd floor, 4th floor and opens to the rooftop on 5th floor with a glass box.
The Central Staircase Threading Through the Floors
A signature staircase threading from the third floor to the rooftop serves as the spatial heart of the project: The third and fourth floors are seamlessly integrated, with the staircase serving as the central visual anchor, the structural framework is fully revealed within the space, celebrating its raw form without intentional concealment, Every joint and component is meticulously refined to ensure a rigorous alignment between structural logic and the brand’s identity.
Glass Box & Rooftop Garden
A glazed volume crowns the building, extending the central staircase to the fifth-floor rooftop garden. This transparent enclosure invites natural light to permeate deep into the architectural interior.
2 ⁄ 看不见的系统
Built by the Unseen
The realization of Ankorau LABO Center is a compelling spatial expression. Yet, it further reaffirms our shared conviction: that the completion of any project is forged by two inseparable realms—the manifest structure, material, light, and experience; and the "invisible system" woven into drawings, models, and workflows.
As computational designers, creative engineers and thinkers, we work in 3D and parametric models as main basis, making it easy to visualize, generate and output designs matching with our numerous ideas we have every day. While it is “easy” to work on 3D basis with Architects our Artists, we still face the need of outputting 2D drawing sets for LDI, clients, construction companies and factories.
The transition from "creativity" to "feasibility" requires a systematic mastery of drawing logic, parametric modeling, documentation workflows, nodal precision, and output specifications. These details represent the massive volume of the iceberg beneath the surface—the true engine that determines whether a project can be successfully realized.
3 ⁄ 工作目标
Our Target
Because of the nature of our work and projects, our main working environment is Rhinoceros3D from McNeel.
Our main target is simple and clear, what we see on our Rhino Layout Screen needs to be exactly same as what will be printed in PDF and exported as DWG.
Detecting potential problems, finding and testing solutions, making the process as simple and as clear as possible to implement, those have been our daily background thoughts while working on and delivering projects all over the past year.
Guided by these insights, bespoke. is developing a proprietary workflow to support our design methodology across all projects. The Ankorau LABO Center marks the first systemic application of this internal R&D process—its successful realization serves as a powerful validation of our evolving workflow.
4 ⁄ 工作方法
Our Working Approach
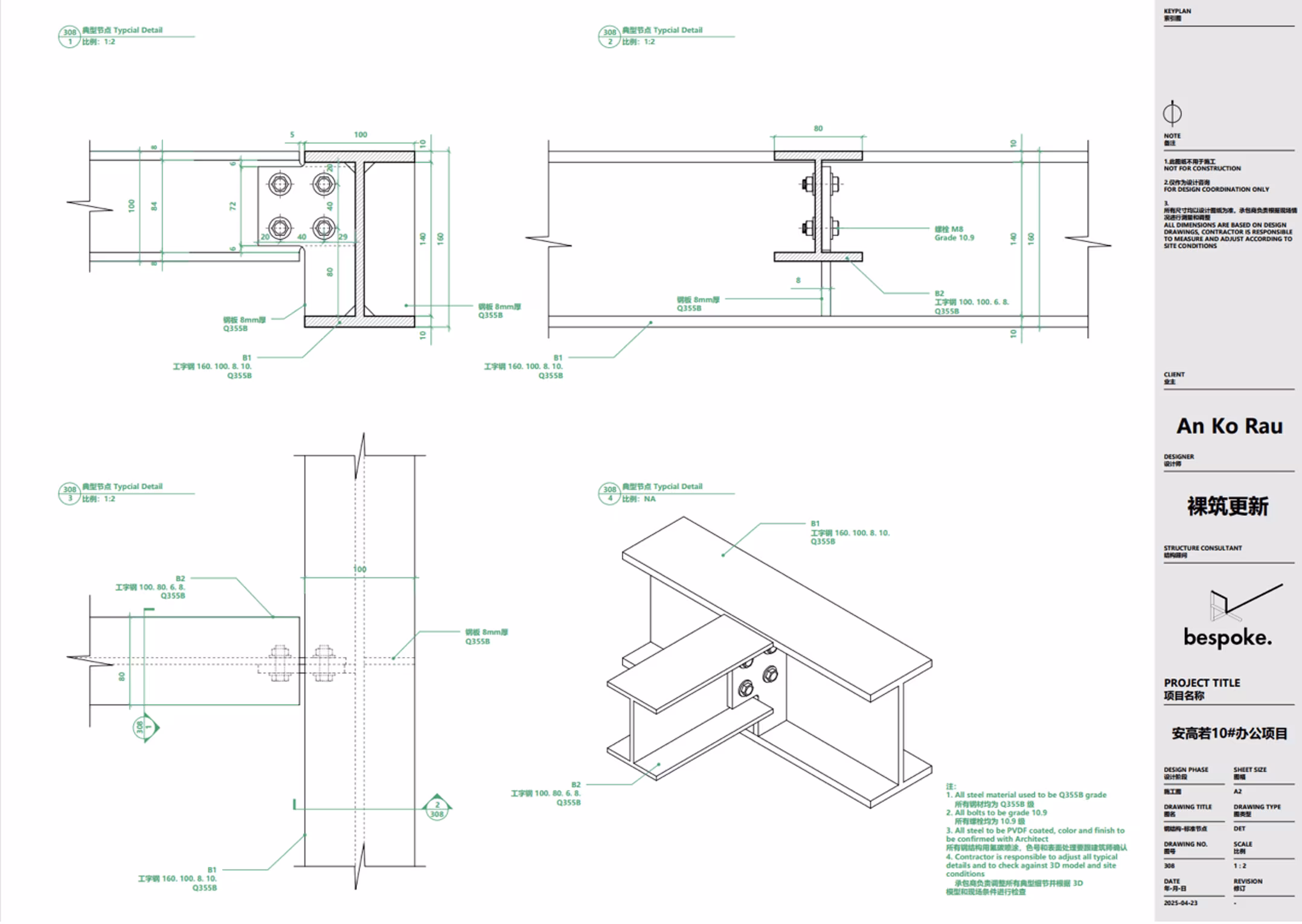
Bespoke. self-developed workflow.
Ankorau LABO Center project presents a collection of structure details that are the key aspect of the project. Through our model and drawing package organization, a complete workflow has been setup using all the power of Rhino to implement a full 3D model at fabrication level, with associated 2D drawings at minimu efforts, both in Rhino and AutoCAD.
This Ankorau project is a proof of concept, a case study we have been dissecting, testing and experimenting. A labo for our own research subjects.
And we found some interesting results that we think could be beneficial to the community, this is what we will release soon.
With the support of Rhino McNeel Team, we are also discussing on the background development that is happening right now for Rhino 9.
CAD Screenshot → Result
Currently, we are preparing a guideline for the community. We will release it soon, at the beginning of 2026, and will continue to improve and develop it based on the feedbacks we will get.